物件一覧
貸駐車場
賃貸戸建て
3DK間取りの平屋戸建て貸家です♪
| 物件名称 | 佐藤貸家 |
|---|---|
| 所在地 | 新発田市舟入町1丁目13番8号 |
| 金額 | 38,000円 |
| 共益費 | なし。 |
| 敷金 | 2カ月 |
| 礼金 | なし。 |
| 間取り | 3DK |
| 最寄り駅 | 西新発田駅 |
賃貸集合住宅
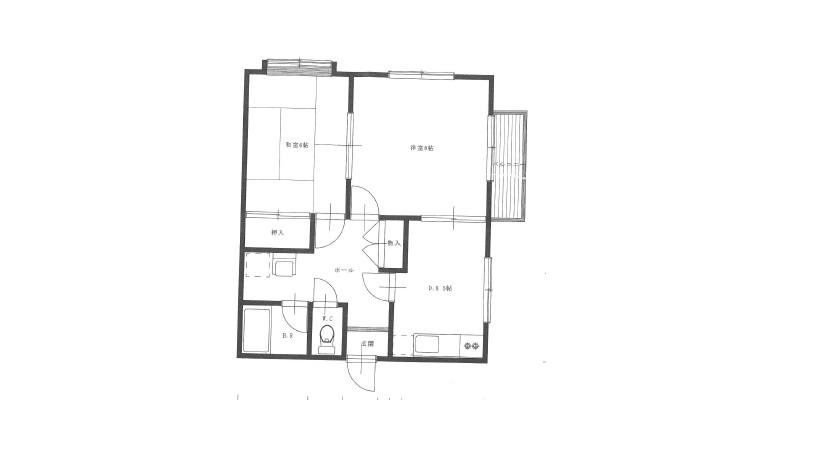
2LDK物件空室は2階です♪
| 物件名称 | 第一サン・ドゥエル |
|---|---|
| 所在地 | 新発田市豊町3丁目12-7 |
| 金額 | 43,000円 |
| 共益費 | なし。 |
| 敷金 | 1カ月 |
| 礼金 | なし。 |
| 間取り | 2LDK |
| 最寄り駅 | 新発田駅 |
駐車場
貸事務所
前テナント様は学習塾様でした。
| 物件名称 | 朝日ビル1階 |
|---|---|
| 所在地 | 新発田市富塚町2丁目2番32号 |
| 金額 | 180,000円(税別) |
| 共益費 | 10,000円 |
| 敷金 | 2ケ月 |
| 礼金 | なし |
| 間取り | |
| 最寄り駅 | 新発田駅 |
貸事務所・貸店舗
駐車場はビル敷地内にはございませんが、すぐ近くに数台確保可能です。
| 物件名称 | 岡本第一ビル2-A |
|---|---|
| 所在地 | 新発田市本町1丁目3-1 |
| 金額 | 60,000(税別)円 |
| 共益費 | なし |
| 敷金 | 賃料2か月 |
| 礼金 | なし |
| 間取り | |
| 最寄り駅 | 新発田駅 |
賃貸集合住宅
ファミリー向けおススメ物件です。
| 物件名称 | ベロウ舟入町 1階 |
|---|---|
| 所在地 | 新発田市舟入町1丁目3-16 |
| 金額 | 1階56,000 円 |
| 共益費 | 3,000円 |
| 敷金 | 賃料1ヶ月 |
| 礼金 | なし |
| 間取り | 2LDK |
| 最寄り駅 | 西新発田駅 |








.jpg)






